Hong Kong SAR, China
Lee Residence
program:
Private Residence
site:
83 Robinson Road, Hong Kong
size:
800 sqm
budget:
withheld @ owner’s request
completion date:
2006

publication:
Post Magazine (11/2006)
ELLE (04/2007)
Insite Homes (2007)
ELLE (07/2007)
Jessica (06/2009)SCMP Post Magazine_Sep09_Sum of its parts
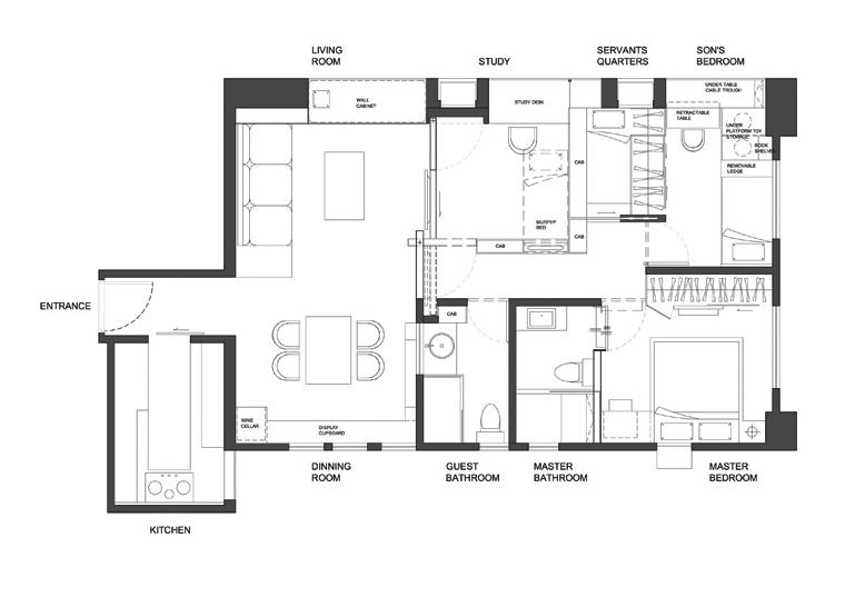
Compact Spacious Living
During the pre-industrial age, the fireplace acted as the “heart of the house.” Family members gathered around the fireplace to share and bond. The television has since replaced the function of the fireplace in our contemporary society. Family members gather around the TV do not (need to) talk to each other. Instead they just watch and “communicate” with this “magical box.”
This project questions the function and role of television. Our hope is to foster family interaction by making the TV disappear. The simplest solution is to have a projector screen drop down and lift up with a touch of a button if one wants to make the
TV goes away.
We decided NOT to go with the obvious.
A glass panels hung a 50 inches plasma TV, it also defines the living space with the study/work area beyond. The owner would have a choice to make the living room twice the current size but the trade off is to slide the TV panel back into a precut slot. We believe in this conscious effort of the physical act to make the TV disappear; it is essential to the practice of the everyday life.
The TV is clear of any A/V system that is placed underneath it supposedly. All cables have been wired across the living room and the A/V system is concealed inside a cabinet next to the sofa. This design makes the TV wall a planar object free to slide to the precut slot.
The project is located on the fourth floor of a generic 35 storey tower in mid-level. Instead of the typical claustrophobic view looking into someone’s apartment, the most unique quality of this apartment is that it enjoys an unobstructed view to the other residential tower podiums with swimming pools. The design concept takes advantage of this unique “visual corridor” by providing an elongated living room to capture this open view.





