Hong Kong SAR, China
Ha Residence
Perspective Awards – Best Residential Interior 2009
program:
Private Residence
site:
Sai Kung, Hong Kong SAR
size:
3,500 sqf
budget:
withheld @ owner’s request
completion date:
2008

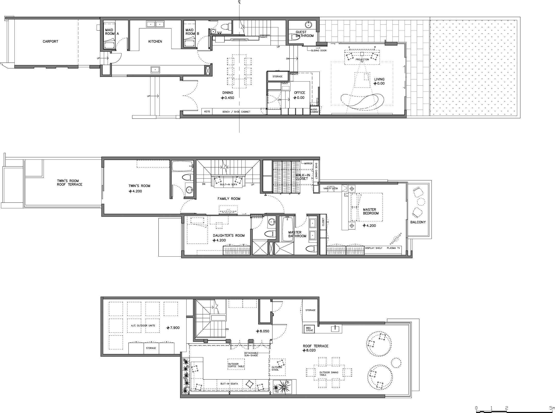
OBJECTS OF DESIRE
The project began with a series of specific programmatic requirement from the client. They want a small office/home office (SOHO) to be set up inside their home while maintaining visual contact with their infant children playing nearby. They requested a closet space that would at least double their current holding capacity without it being too obtrusive in the master bedroom. On the other hand, the clients are avid modern art and furniture admirers. They had already purchased a few signature pieces and wanted us to work with them in the design.
The project takes on the idea of turning the home into somewhat of a modern art gallery, with “objects of desire” to separate and to link various spaces in the house.
The “bright red cube”, finished with slick, glossy car paint and foam aluminum panels, is placed at the center of the ground floor to give a clearer definition of the living and dining spaces. This focal point is their home office, of which the opening provides a visual connection to the adjacent living room.
The second object is the 3M X 1.5M sliding blackboard across from the red cube. It double functions as the door to the restroom and a drawing surface for their creative young children.
The third object is the vertical connection piece between the ground and first floor with a custom-designed lighting/shelving unit inspired by the lighting artist Dan Flavin. It connects to the first floor family room where the lighting wall turns into a built-in sofa.
The fourth and final object is the sliding walk-in closet cladded in American walnut in the master bedroom. The closet takes clues from sliding storage units commonly used in public libraries.
The rest of the house is furnished sparingly and to be kept as pure and clean as possible to contrast with the “objects of desire”.
award:
Perspective Awards – Best Residential Interior 2009
publication:
Post Magazine (09/2008)
Hinge (08/2009)
Perspective (12/2009)
SCMP Post Magazine_Sep08_Outside the box
U+ Weekly_May09_My home is my studio









