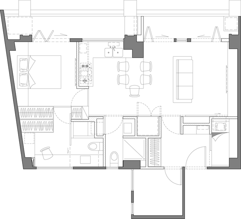
site:
Wan Chai, Hong Kong SAR
size:
800 sqf
budget:
withheld @ owner’s request
completion date:
2014
WIP