New York City, USA
Cafe Euforia
program:
Juice Bar + Flower Shop
site:
New York City, USA
size:
900 sqf
budget:
withheld @ owner’s request
completion date:
1999

“hybrid-aroma”
What does a bouquet of flower smell like in the presence of tropical fruit smoothie? What does the fruit smoothie taste like next to the exotic flowers? Adding the two senses together gives birth to a unique hybrid-space: café euforia.
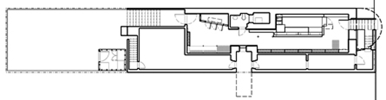
The project began with an interesting and colorful concept to combine a flower shop with a juice bar café in an Upper West Side neighborhood. A “half-basement” with an overall dimension of 11’ W x 7 ½’ H x 45’ L, the space receives very little nature light and has almost no street “presence”. With less than 600 SF of usable floor space, the co-existence of the 2 programs required extremely rigorous planning. A very low ceiling height further challenges any lighting design concept.
The driving strategy for the design is to create “light” and “presence”. A 45’ long, fiberglass cladded and stainless steel structured, “light wall” is constructed to emit “light” and to give a feel of “light-ness”. The perforated shelves within the wall provide display for flowers as well as generic storage spaces. The front end of the wall turns into a double-layered storefront system. Projected from the building façade, a laminated glass with silver dot matrix creates a “floating” storefront that is both translucent and reflective, giving multiple perception of the space and capturing the sidewalk activities with the sky as a backdrop.
Moving towards the backspace, the “light wall” evolves into a workstation containing both computer equipment and flower production area. With a 4-foot module, the dual fixed-sliding fiberglass panel system offers various options for display and storage. Incandescent lights above highlight the display; fluorescent lights below black-lit the panels.
Opposite to the “light wall”, the juice bar is a 15 feet long “container” with a stainless steel countertop. Hovering above the countertop is a laminated glass with fine white dot matrix. Optical illusion is captured once again within the space as a result of how the human eyes focus. The machines and equipment, sitting right behind the glass, are disguised; while the movement of preparing the smoothie, away from the glass, is revealed.
The continuous light shelf gives the overall space a perception of width. Soft continuous illumination further draws people to the flower shop at the back, beyond which a beautiful outdoor garden terrace exists, offering a relief space for the urbanite with a curious mind.





